Home
Selected Projects
Resume
Contact
Ryan Fogle
Home
Selected Projects
Resume
Contact
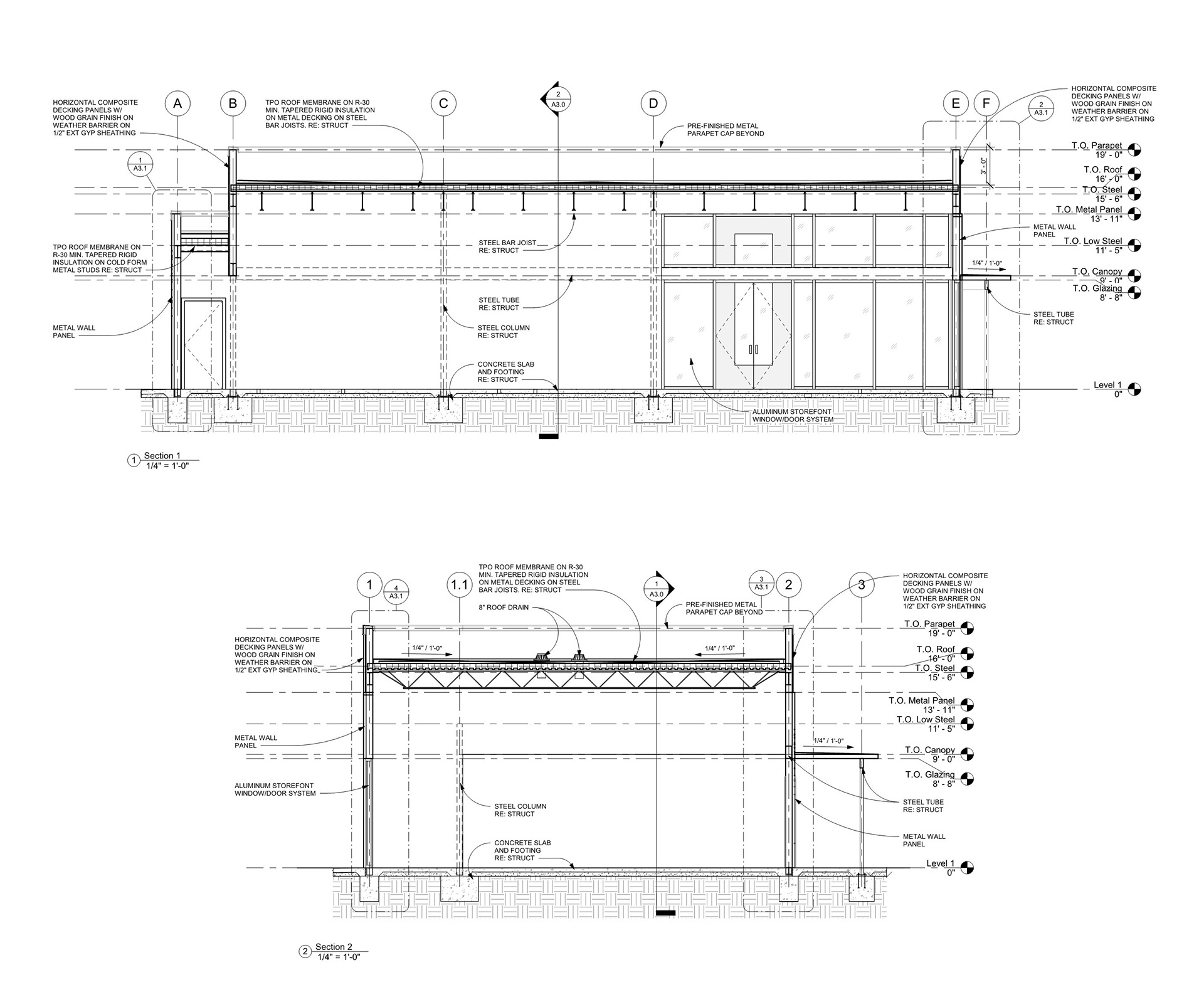
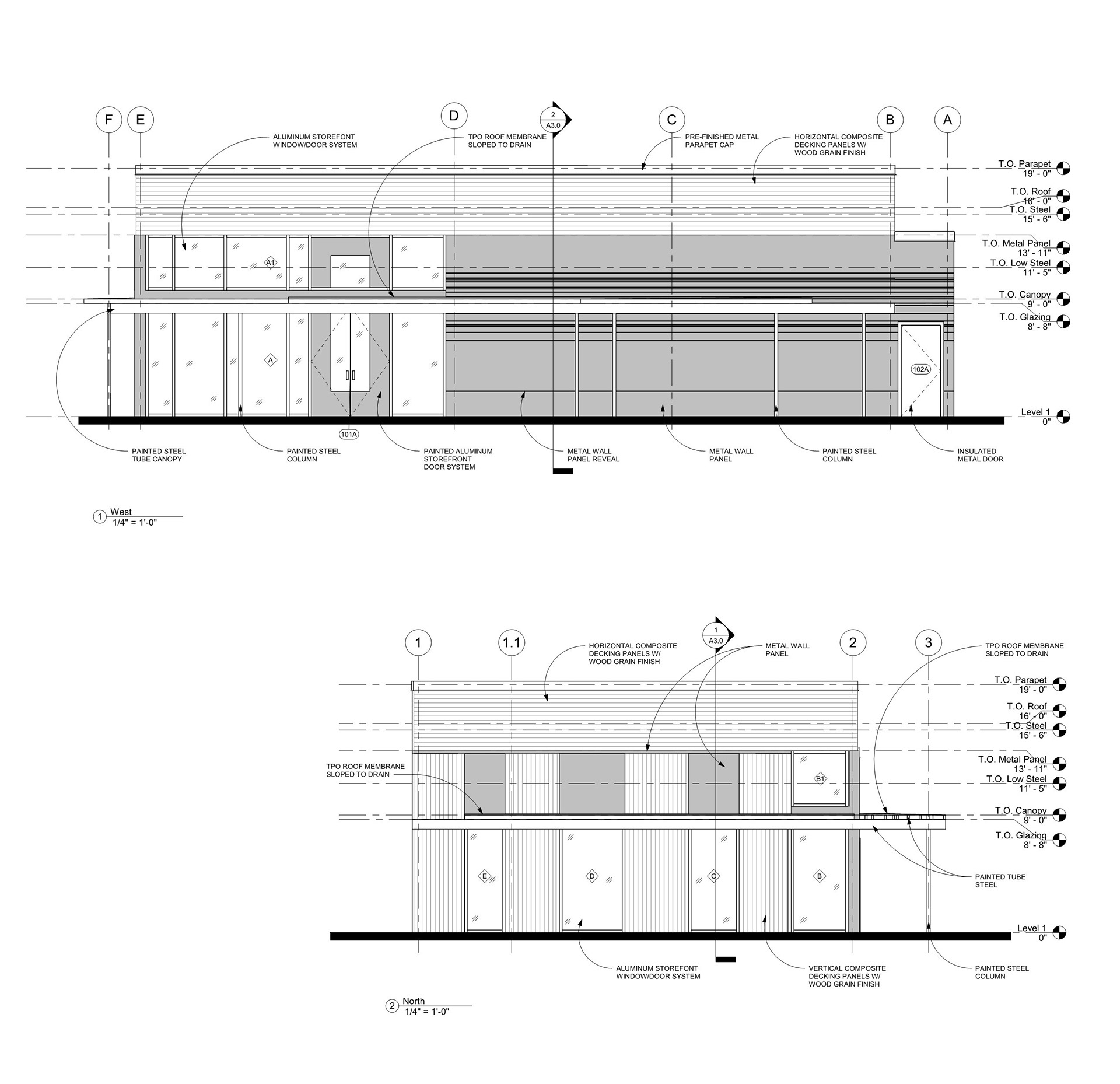
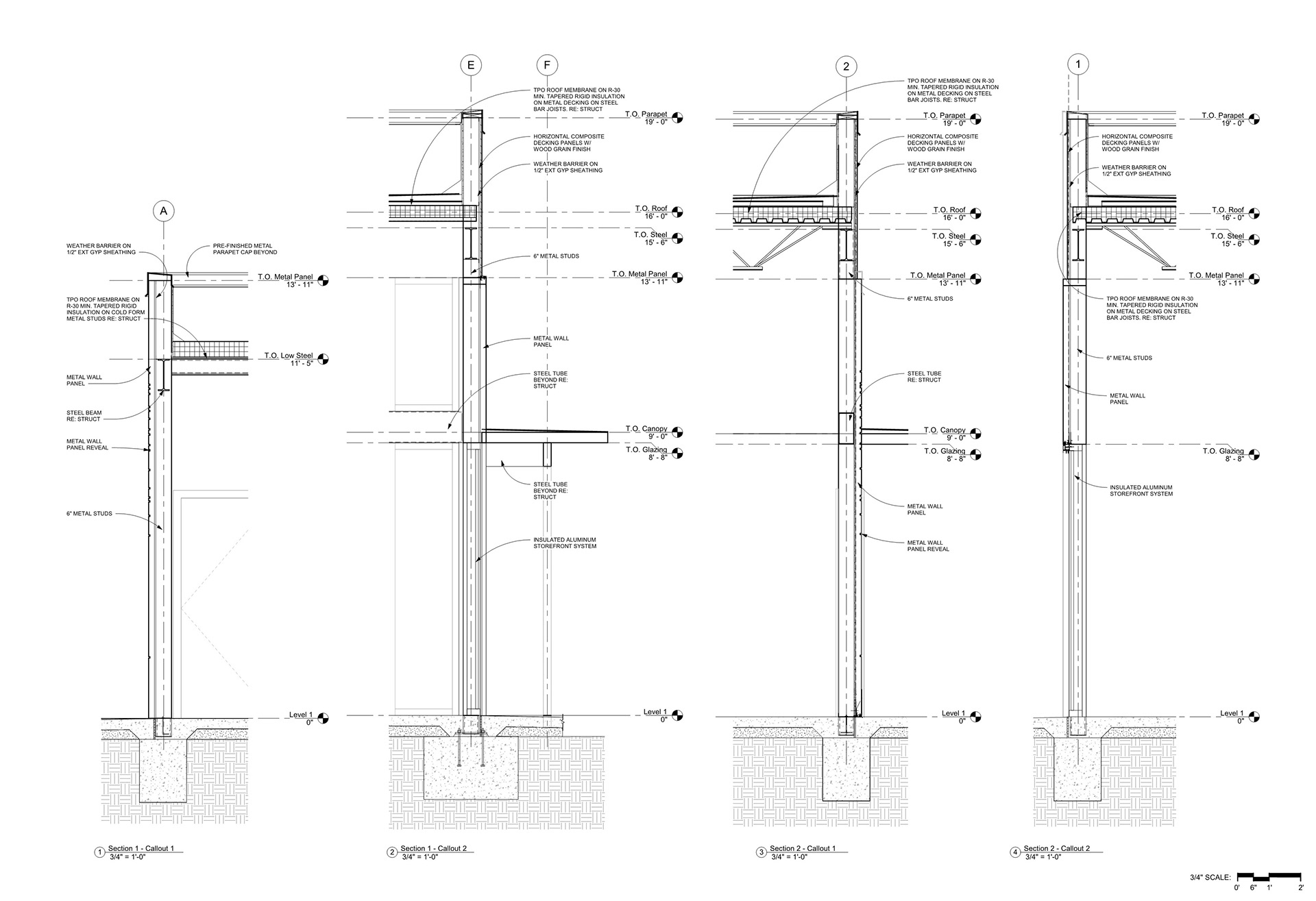
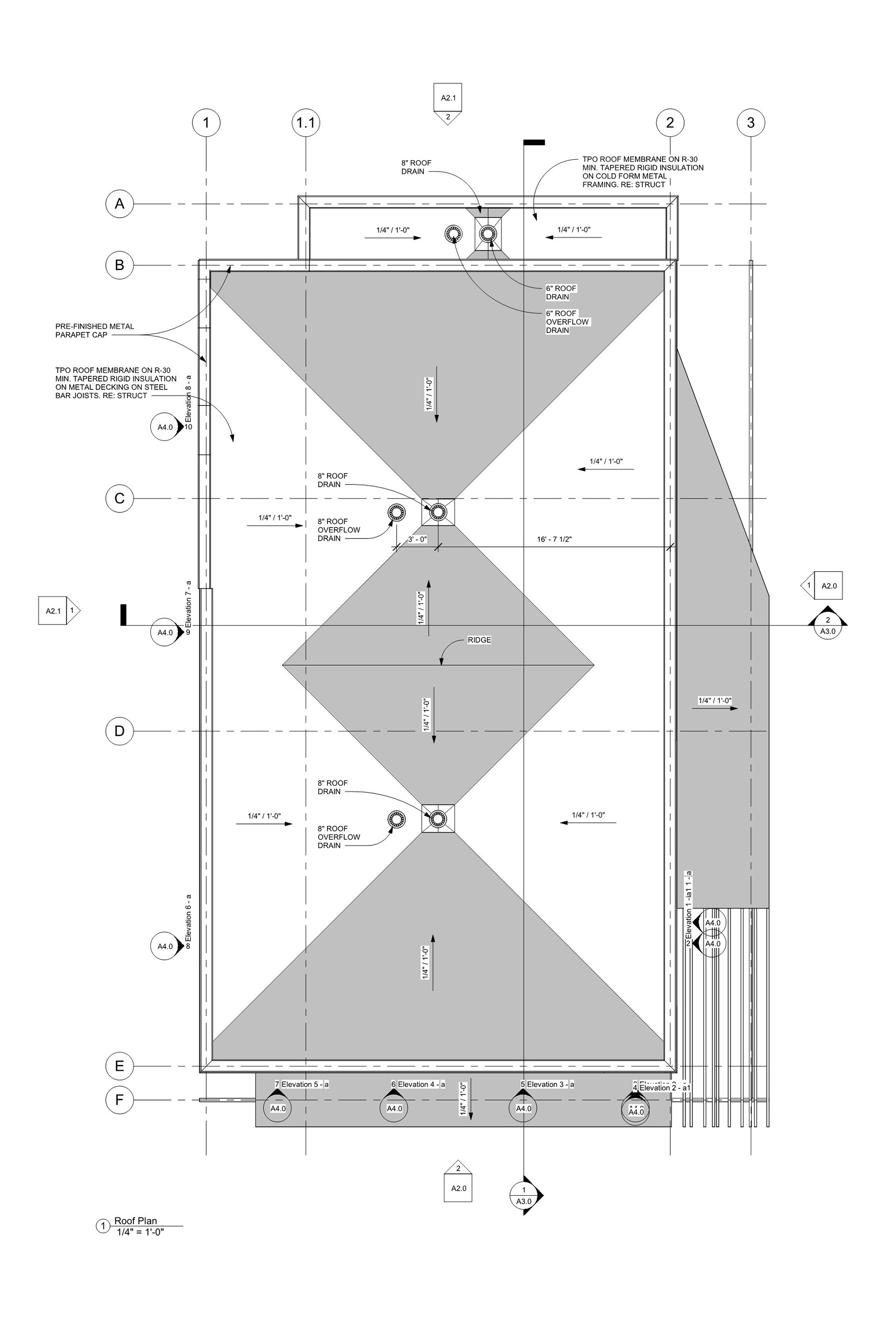
Pickleman's Restaurant
Location: Oklahoma City Role: Contract Architect Firm: Goldy & DAB
↑
Back to Top