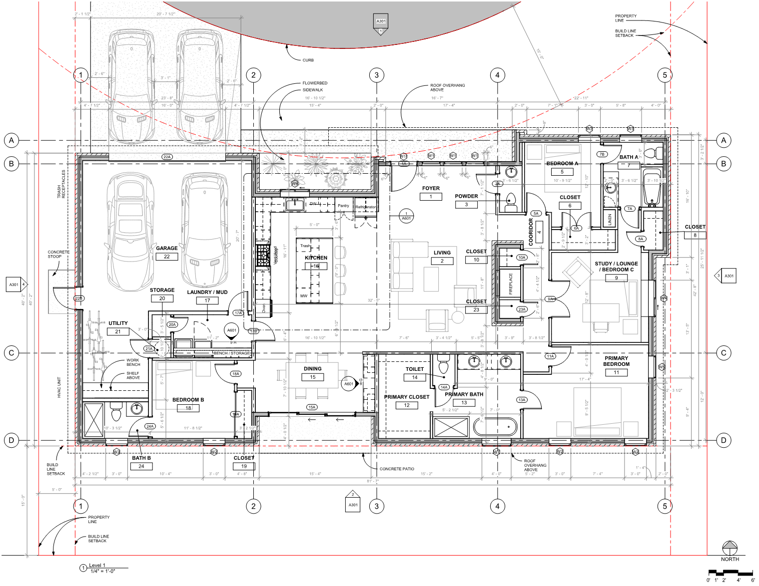
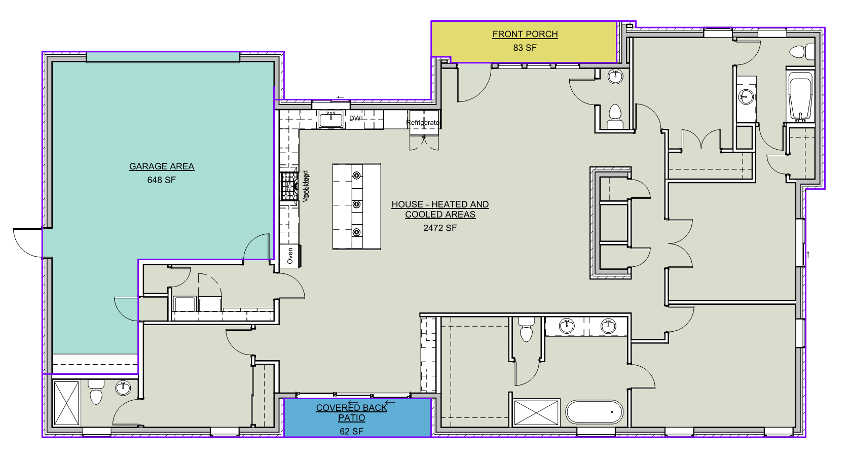
Location: Oklahoma City Role: Principal Architect Firm: Goldy Info: A new house with a mid-century aesthetic for a stylish young family. Budget: $400k