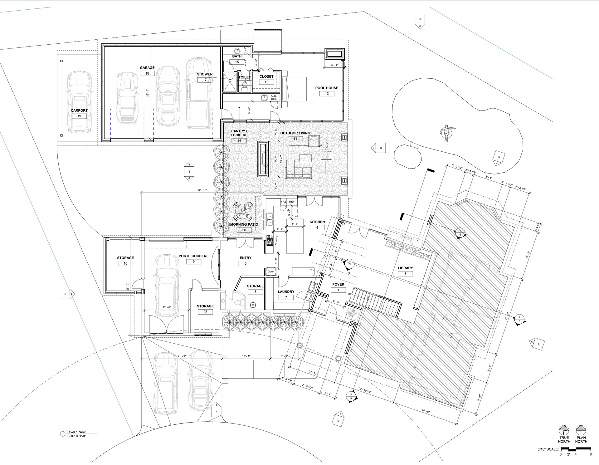
Location: Nichols Hills, Oklahoma Role: Principal Architect Firm: Goldy Info: An ambitious expansion and renovation to convert a one-story traditional home for architect Darin Miller and his wife.