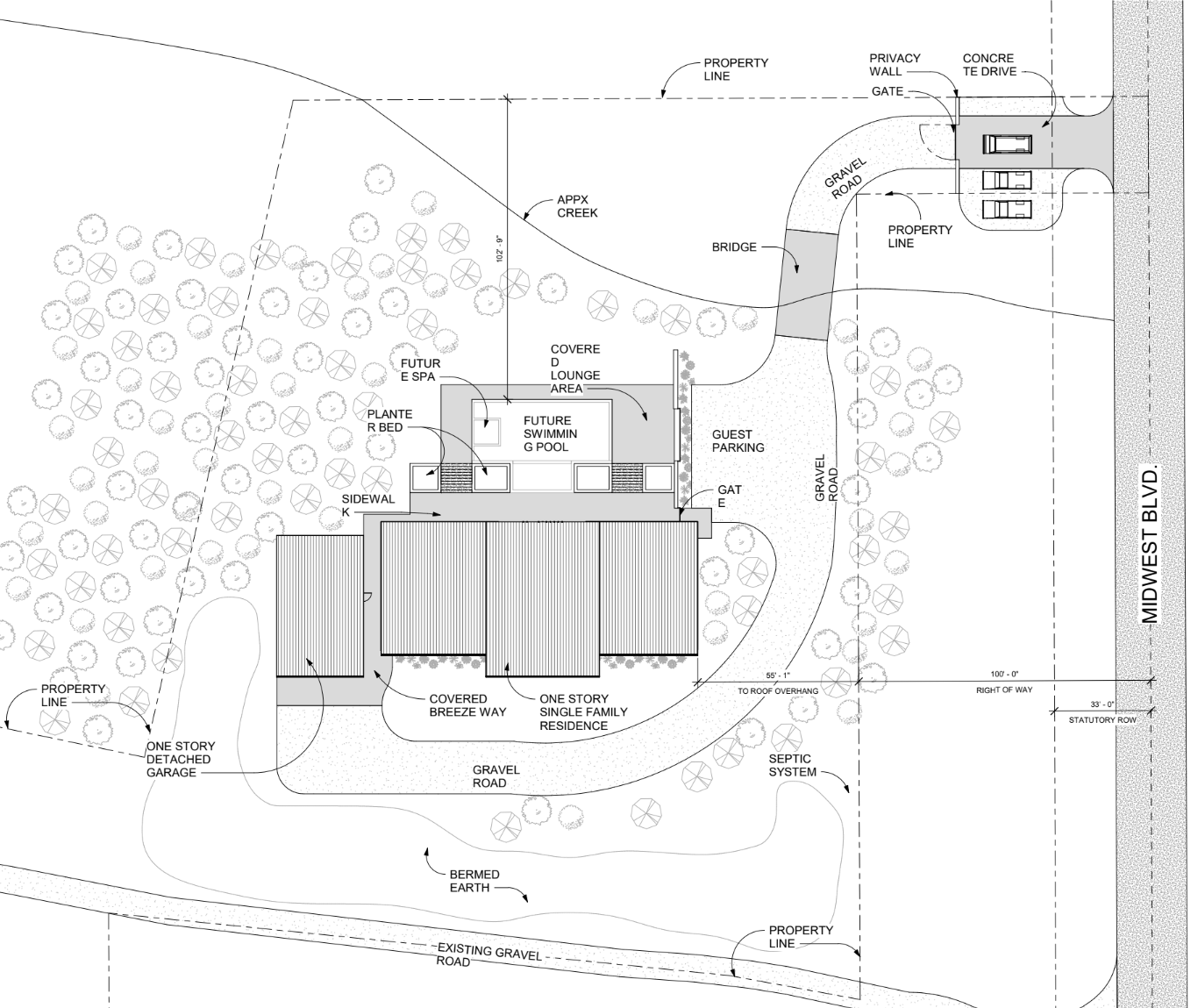
Location: Oklahoma City Role: Principal Architect Firm: Goldy Info: Designed for a landscape architect using on-site dirt and 10% cement. The first rammed earth house to be fully engineered and permitted through the OKC Planning Department. Featured on the 2024 AIA Architecture Tour.