Home
Selected Projects
Resume
Contact
Ryan Fogle
Home
Selected Projects
Resume
Contact
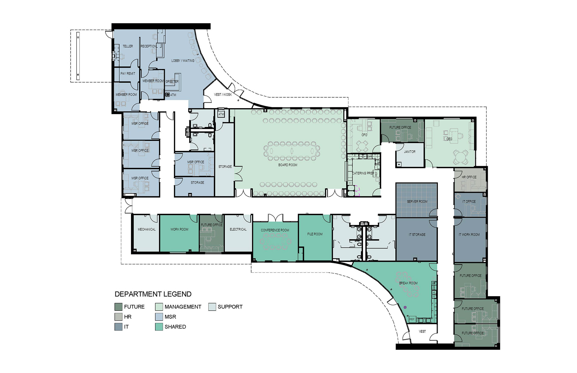
Dixie Power
Location: St. George, Utah Role: Project Architect | Design Build Lead Firm: Guernsey
↑
Back to Top