BEFORE
AFTER
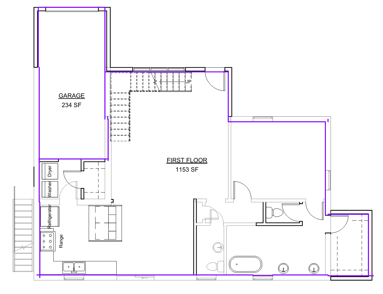
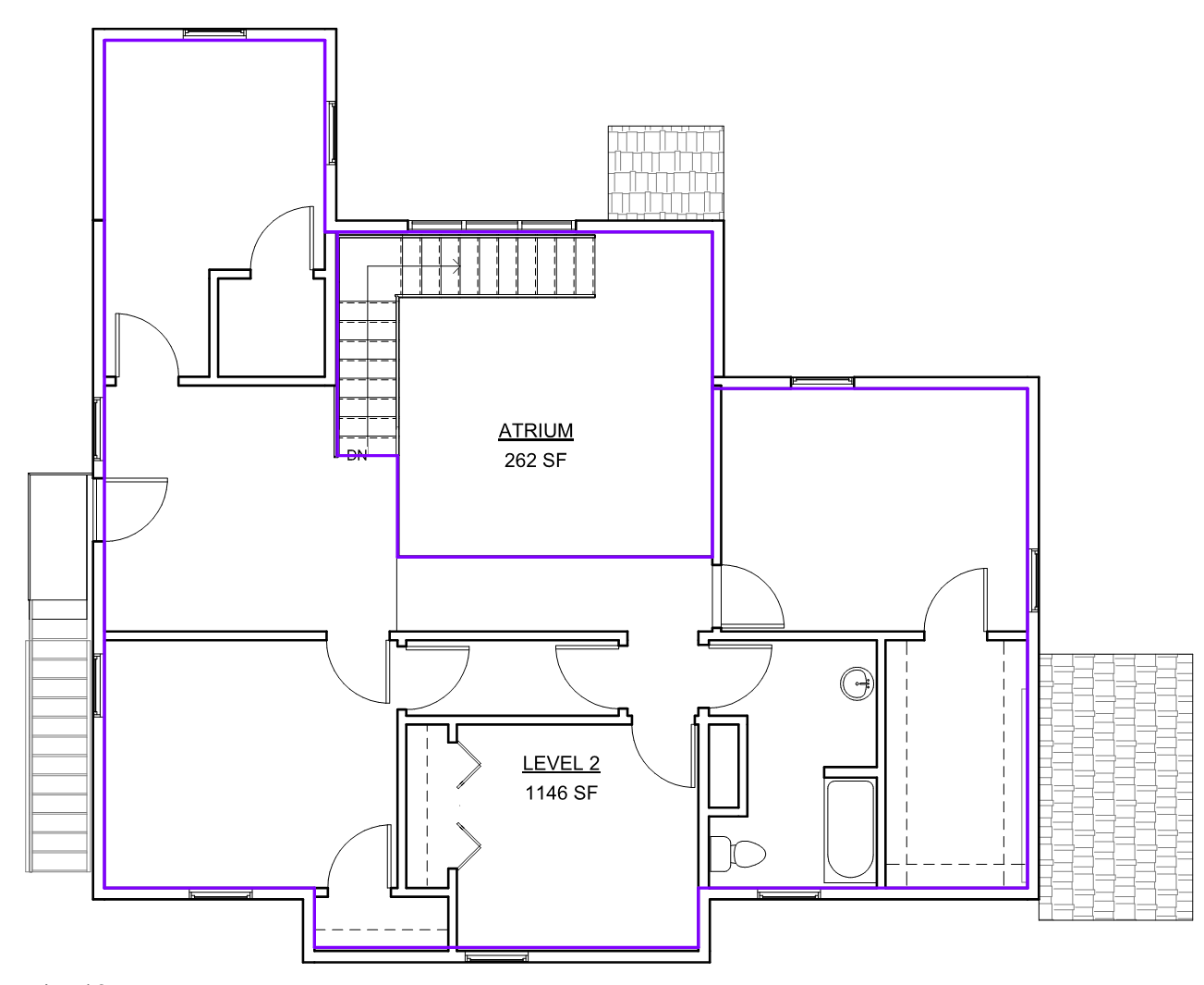
Location: Oklahoma City Role: Principal Architect Firm: Goldy Info: An ambitious flip by Missildine Design Build of a 1950's one-story load bearing concrete block residence. Budget: $150k
BEFORE
AFTER